GENEO

GENEO is a new REHAU PVC profile made of high technology material (RAU-FIBRO) used in the aircraft engineering and Formula 1 with strengthened filaments allowing high degree of profile's core stability. It is PVC joinery extremely suitable for energy efficient and passive houses:
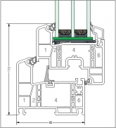
- Six-chamber profile;
- Building width: 86 mm which allows the use of highly effective triple glazed glasses;
- Heat isolation of the profile (Uf) for windows corresponding to the standard for passive house;
- Noise insulation, class noise insulation (VDI 2719): to SSK 5 (glazed glass 50db = Rw, P 47db);
- Elements without reinforcement could be built with the following dimensions: 2100 mm height and 1100 mm width.
The result is a new dimension in the production of windows, revolutionary connection between high technology REHAU material RAU-FIPRO® and innovative profile construction: REHAU GENEO.
Unsurpassed Heat Isolation
GENEO is the best energy window system with building width 86 mm which is currently on the market. The most energy efficient windows in the respective class are realized with the GENEO profiles. They create the cozy climate which the construction entrepreneurs have always wanted. The secret is that the new system meets all energy requirements in a flexible way and it is not necessary to make compromises related to better noise insulation or more effective burglary protection when purchasing it. With GENEO the windows are manufactured with noise insulation class 5, and for burglary protection - with class wind resistance 2, without steel reinforcement and at the same time the unique heat isolation properties are used in their full capacity. In the fully reinforced by strengthened with filaments profile construction, the steel can be dropped off which eliminates the need of the unavoidable so far thermo-bridges. In case of standard building width, the system with middle insulation and offered as an option thermo-modules reaches values of heat isolation up to the standard of the passive houses. For example with the new windows GENEO MD plus a house owner could save up to 1.341 litres naphtha per year – equal to around 1.006 € – and at the same time to relieve the environment with 3 ½ tons CO2.
Unique, innovative and future oriented.
The specially developed for GENEO high technology material RAU-FIPRO offers unknown till now advantages from the moment of window construction. The strengthened by filaments materials have proved their qualities years ago in the hardest aircraft engineering and Formula 1 conditions. In GENEO that material is placed in the core of the profile and takes care for the excellent stability and torsion resistance. Similar systems with steel reinforcement are up to 40% heavier than the fully reinforced GENEO profiles. In simple words, this means faster, not complicated and easy work during the manufacturing, transportation and assembly. The patented "Integrated Reinforcing System IVS", supplied with integrated channels for screwing and additional strengthening cross-elements, ensures maximum stable fixation of the screw compounds and huge basic stability of the profiles. All these qualities don't mean that processing company has to make big investments. The GENEO profiles can be processed only with the available machines and usual processes as for example it is in welding.