
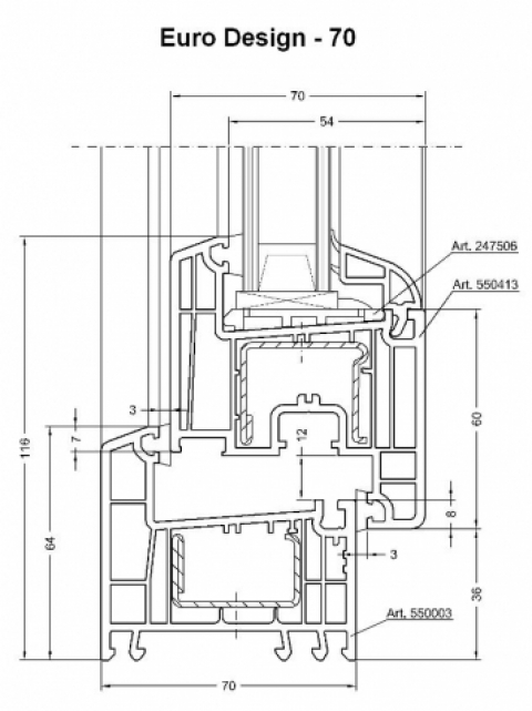
Rehau system Euro Design 70
assembly width:
70 mm
heat isolation:
UF: 1.3 W/m2K
noise insulation: up to
class 5
housebreaking protection:
up to class 3
Characteristics of this PVC joinery:
- perfect for new construction
- renovation of old buildings.
- 5 chamber system for windows and terrace doors камерна
- wide colour variety of
one-sided and two-sided masked profiles
wood imitation